© Archivo fotográfico del IEGPS
© Archivo fotográfico del IEGPS
© Archivo fotográfico del IEGPS
© Archivo fotográfico del IEGPS
© Archivo fotográfico del IEGPS
© Archivo fotográfico del IEGPS
© Archivo fotográfico del IEGPS
© Archivo fotográfico del IEGPS
© Archivo fotográfico del IEGPS
© Archivo fotográfico del IEGPS
© Archivo fotográfico del IEGPS
© Archivo fotográfico del IEGPS
© Archivo fotográfico del IEGPS
© Archivo fotográfico del IEGPS
© Archivo fotográfico del IEGPS
© Archivo fotográfico del IEGPS
© Archivo fotográfico del IEGPS
© Archivo fotográfico del IEGPS
© Archivo fotográfico del IEGPS
© Archivo fotográfico del IEGPS
© Archivo fotográfico del IEGPS
© Archivo fotográfico del IEGPS
© Archivo fotográfico del IEGPS
© Archivo fotográfico del IEGPS
© Archivo fotográfico del IEGPS
© Archivo fotográfico del IEGPS
© Archivo fotográfico del IEGPS
© Archivo fotográfico del IEGPS
© Archivo fotográfico del IEGPS
© Archivo fotográfico del IEGPS
El complejo que en la actualidad es el Parador de Santiago de Compostela fue un hospital de peregrinos ubicado en la Praza do Obradoiro (Santiago de Compostela) que ocupaba y ocupa su frente septentrional, alzándose a un lado de la fachada principal de la catedral compostelana. Su edificio fue construido dentro del cerco de la muralla que se levantó en el siglo XI, junto a la Porta das Hortas por la que se tomaba el camino de Fisterra hacia el oeste. La propiedad del hospital abarcaba todos los terrenos hasta llegar a la Porta de San Francisco. El antiguo cementerio de peregrinos y la capilla da Trinidade se hallaban fuera de murallas, nada más salir por la Porta das Hortas.
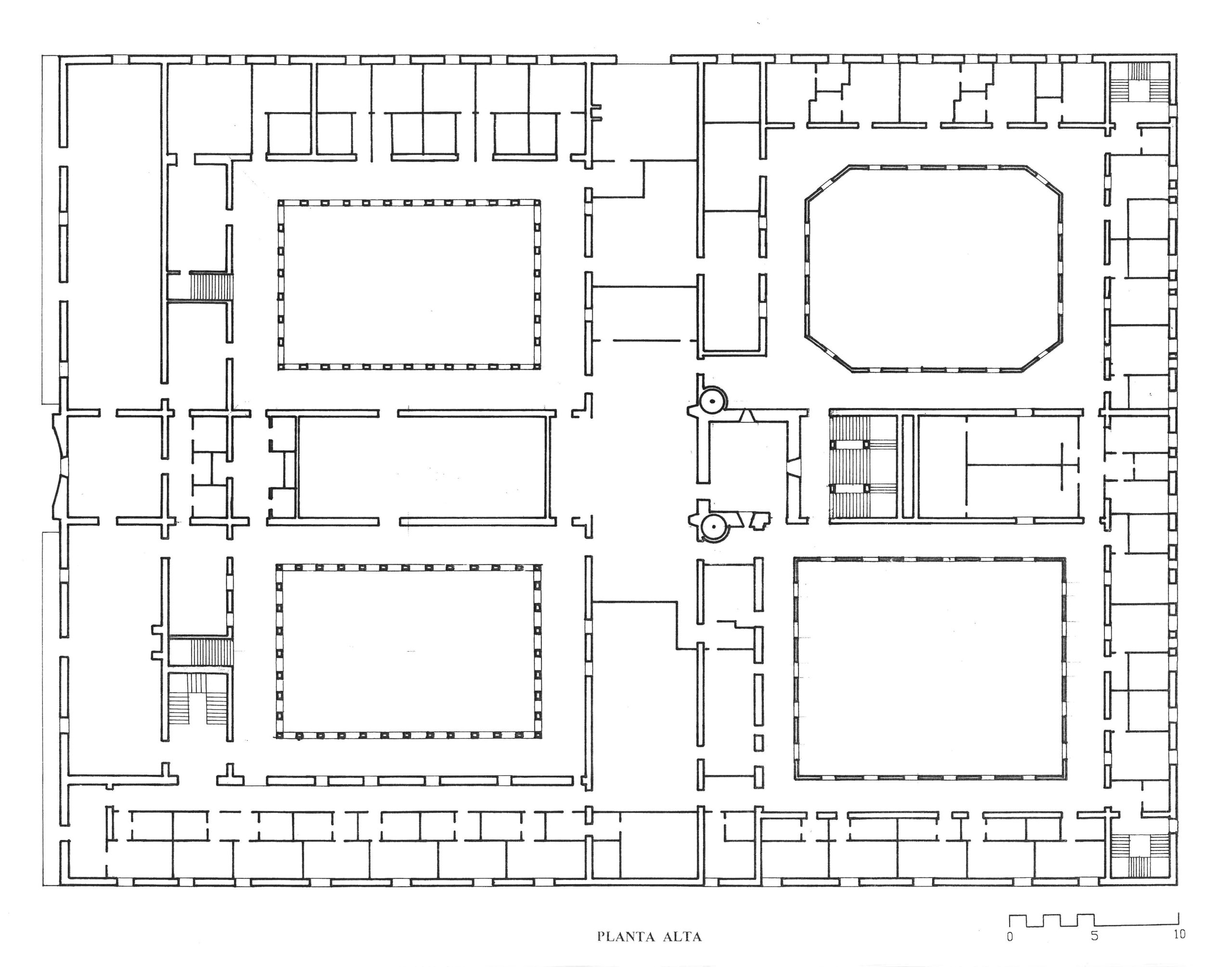
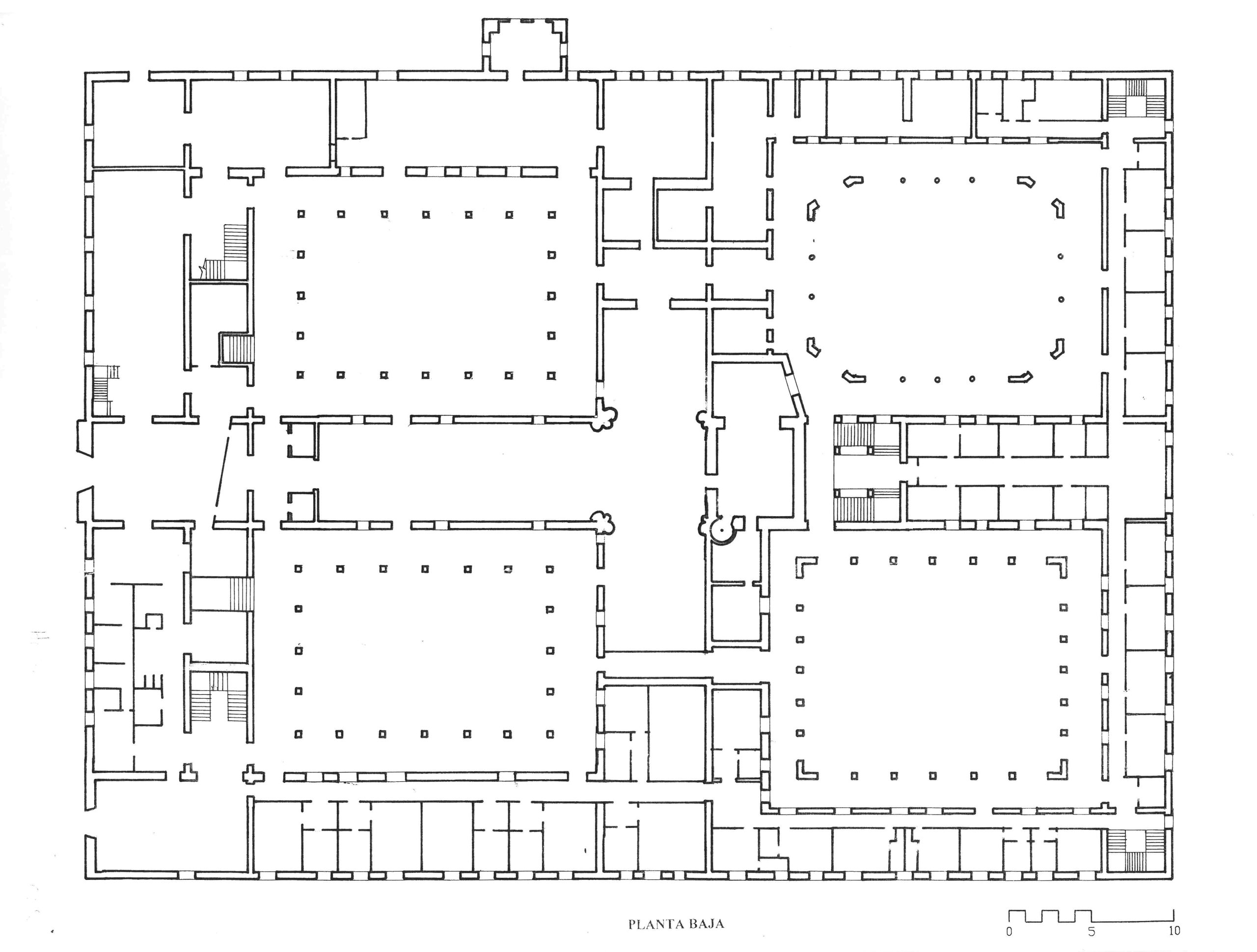
En principio se ideó y se levantó un edificio rectangular de planta baja y un piso alto, con una capilla de cruz latina en medio a la que flanqueaban dos patios porticados. En la planta baja y en el frente principal del edificio se encontraban las distintas peregrinerías o salas para albergar independientemente a hombres y mujeres a ambos lados del zaguán. En torno a los patios se distribuían diversas dependencias como la cárcel jurisdiccional, la botica, la ropería, la sala de braseros y del agua caliente, cocinas, comedores, una de las enfermerías y la inclusa. En el piso alto, sobre las peregrinerías, se encontraban las enfermerías de Santa Ana y de San Cosme. Junto a esta última, en la esquina sudoeste del edificio, estaba la llamada Sala Real. Las enfermerías de Santiago, San Sebastián y San Pedro fueron instaladas sobre las tres crujías de la capilla.
![]() |
| Edificio del antiguo Hospital Real de Santiago de Compostela. |
El primer proyecto del hospital Real de Santiago fue trazado por Enrique Egas que se inspiró especialmente en modelos arquitectónicos italianos de la época. Las obras comenzaron en torno al año 1501 y continuaron hasta la segunda mitad del siglo XVIII pasando por diversas etapas y estilos, siendo varios los maestros y arquitectos que intervinieron en su construcción.
La planta alta también albergaba los aposentos de los administradores, la cocina y el comedor de los capellanes, un refectorio más y dos pequeñas capillitas. En el costado del poniente, aprovechando el desnivel del terreno, se construyeron los sótanos destinados a diversos servicios (leñera, bodega, caballerizas, etc.). En la parte trasera había otros dos patios abiertos, con huertos rodeados por construcciones de madera y tablazón, concediéndose la licencia para reedificar estos patios de atrás en el año 1760 se concedió licencia, momento en el que se también se construyeron nuevos patios cerrados y porticados de cantería. Con esta obra el edificio completó su planta conformada actualmente por una cruz griega inscrita en un rectángulo, con los cuatro patios porticados situados entre los brazos de la cruz.
En la fachada principal orientada a la plaza do Obradoiro destaca la portada monumental de 1519, obra de Martín de Blas y de Guillén Colás, quienes habían trabajado en el monasterio de los Jerónimos de Lisboa. Ambos maestros hicieron para este establecimiento una portada de estilo plateresco, cuyo programa iconográfico trata el tema de la salvación en estrecha relación con la funcionalidad del edificio que estaba dedicado no solo a la curación de los cuerpos, sino también a la redención de las almas.
La portada interrumpe la proyección de horizontalidad del conjunto edificado, entremezclándose en ella una incipiente ornamentación renacentista con un concepto de fachada telón propio del gótico, al igual que el tratamiento formal de las esculturas figuradas. El conjunto se compone de tres cuerpos superpuestos que aparecen flanqueados por dos pares de pilastras decoradas con grutescos y candelieri, ubicándose también esculturas bajo ricos doseletes en el espacio entre las pilastras.
![]() |
| Portada ubicada en la fachada principal. |
El eje central de la entrada está formado por la puerta con arco de medio punto abocinado, encontrándose en la arquivolta interior del arco tres pequeños bustos que representan al emperador Carlos V y a sus padres Felipe el Hermoso y Juana de Castilla. En las enjutas de la puerta principal están ubicados sendos medallones con las efigies de los Reyes Católicos —Isabel y Fernando— patrocinadores de la fundación. En el frente de las pilastras están situadas cuatro imágenes que representan a las virtudes cardinales (fortaleza, templanza, justicia y prudencia). A ambos lados de la portada se colocaron los dos grandes escudos con las armas reales, sostenidos por grandes figurones desnudos, un elemento decorativo característico del estilo plateresco del primer tercio del siglo XVI en España.
![]() |
| Detalle de la parte central de la portada. |
El segundo cuerpo de la portada lo compone un friso corrido que discurre sobre el arco de la puerta y que representa las doce figuras de los apóstoles, sobre los que se encuentra una inscripción fundacional del hospital. La cornisa separa este cuerpo del superior, donde se encuentran hornacinas que albergan las imágenes de Santiago el Mayor, de Jesucristo, de la Virgen con el Niño y de San Juan. En el centro, se abre paso ventanal adintelado (posiblemente fruto de una intervención posterior, ya que originariamente habría otra hornacina con la figura de Dios Padre).
![]() |
| Detalle del friso y las figuras del segundo registro de la portada. |
Coronando todo el conjunto es posible observar una crestería de pináculos entre los que se intercalan figuras de ángeles con instrumentos musicales. La iconografía entre las pilastras se compone de las estatuas de Adán y Eva en la parte de abajo y, sobre éstas, las de Santa Catalina y Santa Lucía. Por encima de estas se sitúan las de San Juan Bautista y Santa María Magdalena para alcanzar el nivel más alto con las figuras de San Pedro y San Pablo.
![]() |
| Detalle del remate de la portada. |
En el extremo oriental de la fachada principal, próxima a la esquina del edificio, se abría la puerta de la inclusa. Esta ha sido sustituida por otra adintelada; sin embargo, se conoce que tenía un arco conopial sobre el que campeaban las armas reales y el emblema del hospital. Otro elemento que destaca en el exterior del edificio es la cornisa moldurada por la que corre una cadena pétrea, motivo éste que también se halla en otras construcciones laicas de comienzos del siglo XVI. Tal cornisa corona la fachada principal y parte de las laterales, de ella sobresalen las gárgolas, no solo como elemento de desagüe, sino también como complemento estético.
Originariamente las únicas ventanas de la fachada principal eran pequeños vanos con arquitos polilobulados y conopiales que posteriormente fueron sustituidos por huecos adintelados. Bien avanzado el Renacimiento se abrió en el extremo occidental del muro, a la altura del primer piso (en la parte correspondiente a la Sala Real), una ventana con entablamento y frontón triangular sostenidos por sendas columnas de orden jónico.
Ya en el barroco, esta ventana se convirtió en balcón y en este último período, concretamente en el año 1679, cuando se aprobó el proyecto de fray Tomás Alonso para la reforma de la fachada renacentista introduciendo una gran balconada corrida, que se apoyó sobre grandes ménsulas ricamente decoradas con motivos vegetales e imágenes antropomorfas (muchas de ellas fantásticas y escatológicas). Además, se abrieron a la balconada tres nuevas ventanas adornadas con profusa decoración barroca.
Tanto la balconada como las ventanas terminaron por integrarse con el resto de la fachada que adquirió así una nueva perspectiva, rompiendo su monotonía. Se entendió esta obra como parte integrante del espacio público que ocupaba, de forma que la balconada era también mirador y tribuna desde donde se podían contemplar los festejos y actos que se celebraban en la plaza.
![]() |
| Corredor enlosado que delimita la fachada del antiguo hospital. |
Sobre la fachada principal discurre un corredor enlosado a modo de atrio, delimitado por bellos pilares labrados en 1543 por el maestro Miguel, acotando lo que era un espacio de respeto dentro del entorno del hospital, que había sido cedido por el concejo en 1532.
![]() |
| Arco y reja de la capilla del hospital que comunica con la nave. |
Al entrar en el edificio traspasando la portada principal se accede al amplio zaguán de planta cuadrangular, cuyas paredes estuvieron decoradas con pinturas murales que representaban diversas escenas y con distintos medallones en los que aparecían los retratos de los reyes de España desde la época de los fundadores. Estas pinturas fueron ejecutadas por Landeira Bolaño en 1778, en sustitución de las realizadas por el maestro Felipe en el siglo XVI. Hoy en día nada queda de ellas, estando los muros recubiertos por un enlucido de color blanco.
La pared del fondo del zaguán es medianera con la capilla del hospital. En el centro de ella se abre todavía un alto arco decorado por una sucesión de pequeñas arcuaciones a la altura de la primera escocia y una cadena de rosetas en la escota interior. Este arco albergó un altar sobre el cual se instaló en un primer momento un retablo pintado, que más tarde fue sustituido por otro esculpido por Corneliellis de Holanda en 1525. A comienzos del siglo XX se conservaba de este retablo el zócalo que contenía la figura de Cristo, aunque hoy en día solo queda de él la predela o banco inferior que representa los bustos de seis apóstoles cobijados en nichos cubiertos por veneras (tres a cada lado) y en el centro el tema del buen samaritano. Al altar le precedía una de las dos rejas que el toledano Juan Francés realizó para el hospital entre los años 1509 y 1513. La reja permanece en su ubicación original. No obstante, el altar fue desmontado y la pared que estaba tras él fue derruida para hacer la entrada actual a la capilla del hospital. El frontispicio y las paredes laterales que están dentro de la reja fueron decorados con pinturas que representaban el juicio final y que hoy no se conservan. En las mismas paredes se abren sendas portadas con arcos mixtilíneos moldurados de estilo isabelino que presentan decoración de rosetas en las escotas. A través de estas puertas se accedía a dos distribuidores que comunicaban con las peregrinerías y los patios. Estas puertas eran las únicas que había originariamente en el zaguán, puesto que los grandes arcos rebajados que en la actualidad dan paso a una amplia y despejada sala de estar (a la izquierda) y a la recepción del hostal (a la derecha) no existían en el proyecto primitivo.
![]() |
| Bóveda de la capilla. |
La capilla fue proyectada en su totalidad por Enrique Egas. La planta es profundamente innovadora, ya que, con su esquema de cruz latina en medio de los dos patios delanteros del hospital, inauguró una tipología hospitalaria que el propio Egas repitió en otros edificios. Conforma la cruz latina una única nave, que constituye su brazo más largo y el transepto, que constituye el brazo más corto. La cabecera estaba ocupada por las sacristías alta y baja y no por el presbiterio. A los pies de la nave se situaba el coro. A la capilla se accedía a través de dos puertas abiertas en los muros laterales de la nave que daban a los patios delanteros y de otra puerta más abierta en el extremo del crucero, que daba al corredor de comunicación entre los patios del lado oeste. Las puertas de la nave tienen arcos mixtilíneos isabelinos, mientras que la puerta del crucero fue remodelada según el gusto del neoclásico. La nave y el crucero reciben luz a través de distintas ventanas adinteladas de doble derrame, entre ellas llama la atención el gran ventanal abierto en el brazo oriental del crucero, que está profusamente decorado con motivos ornamentales del gusto renacentista, destacando un medallón con el busto del emperador Carlos V inserto en un pequeño frontón triangular que se alza sobre el dintel.
La capilla se cubrió en su totalidad con artesonados de madera, obra de los carpinteros Sancho de Valencia y Pedro de Morales que realizaron entre los años 1510 y 1513. Los artesonados estuvieron pintados y adornados con pan de oro. Las paredes de la nave tuvieron pinturas murales que se han perdido y que representaban historias de la pasión de Cristo y de la Virgen María. Una reja blasonada con las armas de los Reyes Católicos separa, todavía hoy, la nave del crucero. Esta reja (como la del zaguán) es obra de estilo plateresco realizada por Juan Francés. El esquema de las dos rejas del hospital es muy similar, aunque la del zaguán es de un cuerpo y la de la capilla de dos cuerpos separados por un friso decorado con temas vegetales. Los barrotes son en realidad pilares fasciculados, alternando los que llegan hasta el friso y los que se convierten en corazones y rombos decoración habitual en la rejería de época gótica, que contrasta con los temas renacentistas que aparecen en el remate a base de delfines afrontados y temas vegetales, así como en el copete con roleos y tallos en plancha recortada según modelos habituales en la rejería de Juan Francés.
![]() |
| Pilares con las imágenes de María Magdalena, Santa Ana y Santa Catalina en el pilar anterior izquierdo del crucero (izquierda) e imágenes del pilar con San Felipe y San Pablo en el pilar anterior derecho del crucero (derecha). |
El crucero de la capilla lo constituye un cuerpo de planta cuadrangular cubierto por el cimborrio abovedado. Los cuatro pilares compuestos sobre los que se sostiene el cimborrio son de estilo gótico flamígero, tienen una decoración naturalista y exuberante que recorre soportes y molduras. Destaca el conjunto que está integrado por dieciséis esculturas policromadas (diez de ellas en los dos pilares anteriores y las otras seis en los pilares posteriores que están adosados a la pared de la sacristía). Las imágenes se apoyan sobre ménsulas y se encuentran bajo doseletes decorados con elementos vegetales que conforman una filigrana tallada en la piedra caliza traída exprofeso de Coímbra.
En el pilar anterior del lado derecho, se encuentran las figuras de san Juan Evangelista, san Pedro, Santiago el Mayor (representado como peregrino), san Felipe y san Pablo. En el pilar anterior izquierdo: la Virgen María, María Magdalena, santa Ana, santa Catalina y santa Lucía. En el pilar posterior derecho: san Benito, san Francisco y santo Domingo, representando a las principales órdenes religiosas del medioevo, y en el pilar posterior izquierdo: san Esteban, san Lorenzo y san Vicente. La imagen de Santiago fue esculpida por Pedro Francés, a quien se pagó por ella 1.500 maravedís en el año 1511 y las restantes se deben a Nicolás de Chanterenne que las cobró en el mismo año. En la labor de policromía de estas imágenes intervinieron pintores como Francisco Gallego y su mujer, Catalina Rodríguez.
El cimborrio tiene un nivel alto abierto a las enfermerías de San Sebastián, Santiago y San Pedro a través de tres amplios arcos torales enmarcados por escotaduras. Los arcos forman tribunas abalaustradas ricamente decoradas, desde donde los pacientes postrados podían oír misa y seguir las funciones religiosas. Por encima de las tribunas discurre un friso que recorre los cuatro lados del cimborrio, albergando una inscripción latina que invita a la caridad y reflexiona sobre la banalidad de lo material en línea con la filosofía del hospital. Sobre el friso se abren los ventanales góticos con vidrieras (dos por cada lado), que iluminan el cimborrio. Finalmente, el conjunto se cubre con bóveda pétrea, que es obra de la tercera década del siglo XVI y que responde a un nuevo planteamiento ornamental de la escuela renacentista salmantina. En un primer momento se encargó su ejecución a Jácome García (colaborador de Juan de Álava en el claustro de la catedral compostelana), que comenzó la bóveda. En 1527 el trabajo se traspasó a los maestros Juan Pérez, Diego de los Prados y Juan de Villaverde. Los nervios de la bóveda, que se cruzan en el centro, parten de las esquinas y del medio de cada uno de los lados subdividiendo el espacio total en cuatro tramos. Si se atiende al conjunto se dibuja una estrella de ocho puntas y si se mira a los cuarterones, cada uno de ellos representa una estrella de cuatro puntas. En el exterior el cimborrio proyecta su masa prismática rematada en una cornisa decorada con rosetas, que sirvió en su día de asiento a una crestería de la que solo queda en pie una mínima sección adosada a la caja circular de las escaleras que conducían al campanario.
![]() |
| Sacristía baja y detalle de la bóveda. |
Volviendo a la cabecera de la capilla, esta estaba ocupada por dos sacristías. A la sacristía baja se accedía directamente desde el crucero a través de una puerta adintelada con ornamentación de gusto gótico isabelino. Esta está conformada por una sola habitación de planta cuadrada cubierta por una bóveda sostenida por arcos formeros apuntados. Estos arcos multiplican sus molduras y escotas adornadas con motivos geométricos y vegetales entre los que se intercalan figuras humanas y de animales. La nervatura de la bóveda dibuja una estrella de cuatro puntas de trazos combados que forman alveolos. De las ventanas de esta habitación solo queda una en la pared oriental que es de estilo gótico con vano apuntado y divida por un parteluz que conforma dos pequeños arquitos sobre los que se abre un pequeño óculo. Este espacio fue transformado en la tercera década del siglo XVI para poder acoger el archivo del hospital. Esto determinó que se le añadiese una habitación adicional por el lado occidental. En la pared meridional de esta segunda habitación, y bajo la bóveda del techo, se encastraron unas hornacinas adinteladas flanqueadas por pequeñas columnas y coronadas por un friso y dos frontones semicirculares, todo ello adornado con rica decoración renacentista. Posteriormente, bajo las hornacinas, se colocaron tres armarios con arcos de medio punto cuyas puertas estaban blindadas para guardar el tesoro del hospital.
Encima de la sacristía baja se levantó la sacristía alta, ambos espacios se comunicaron por medio de una escalera de caracol. En la sacristía alta se abría una puerta que daba a una pasarela por la que se podía acceder al altar superior de la capilla. La sacristía alta es también de planta cuadrada, está cubierta por una sencilla bóveda de crucería y tiene muros de mampostería en los que se abrieron aspilleras de amplio derrame.
![]() |
| Patio del cuadrante sudoeste o de San Marcos. |
Los dos patios delanteros del hospital tuvieron que rehacerse a los pocos años de construirse debido a problemas estructurales, a la mala cimentación y a la blandura y porosidad de la piedra calcárea traída de Coímbra que no soportó bien la lluvia y humedad imperantes en Santiago. Los dos patios fueron reedificados por Rodrigo Gil de Montañón a mediados del siglo XVI, quien respetó su estructura primitiva trazada por Enrique Egas en estilo gótico hispano-flamenco. De la obra de Egas se aprovecharon los escudos de los Reyes Católicos, colocados en las enjutas de los arcos y, también, algunos elementos decorativos. En ambos patios la organización es similar ya que cuentan con planta cuadrangular y corredores claustrados con arquerías de medio punto sostenidas sobre esbeltos pilares de sección cuadrada, cada uno de ellos elevado sobre un plinto coronados por capiteles con decoración a base de volutas, figuraciones y motivos vegetales.
![]() |
| Patio del cuadrante sudeste o de San Xoán. |
Los pilares sostienen los arcos de medio punto sobre los que discurre una cornisa moldurada y decorada que señala la división entre los pisos. Encima de la cornisa, un ventanaje con balaustradas que se cobija bajo arcos de medio punto dispuestos en apretada sucesión entre pilastras. Sosteniendo el maderamen de los corredores altos se encuentran casi un centenar de canecillos que retoman la tradición medieval de las iglesias románicas. La mayor parte de ellos son figurados y contienen representaciones tanto de personas como de animales, sean estos reales o fantásticos. Las figuras pueden aparecer aisladas o formando parte de una escena. En cuanto a su temática, son perfectamente reconocibles aquellos de carácter escatológico, o los que aluden a pecados capitales como la lujuria o la gula. En los patios destacan, además, las puertas que sirven de acceso a las escalinatas que suben a los pisos altos, en cuya ejecución se introdujeron fórmulas del arte manuelino que se desarrollaba coetáneamente en Portugal. Esta inspiración queda patente tanto en la utilización de arcos de cortina o de sucesión de tramos curvos, como en la decoración de granadas y elementos naturalistas. En el centro de cada patio se hicieron sendas fuentes artísticamente labradas y decoradas con figuras humanas y de personajes mitológicos (el agua de las fuentes se derivaba a las cocinas, a las letrinas y a otros lugares necesarios).
![]() |
| Patio del cuadrante noroeste o de San Lucas. |
Los dos patios posteriores, tal como aparecen en la actualidad, comenzaron a construirse en el año 1760 bajo la dirección de Lucas Ferro Caaveiro. Fueron trazados buscando la simetría respecto a los patios delanteros, a los que se dio acceso directo por medio de corredores. Por lo tanto, se concibieron claustrados y en ellos se empleó un estilo arquitectónico acorde con el barroco compostelano. En el centro de cada patio se abrieron sendos pozos, cuyos brocales dieron juego para la construcción de templetes que siguen los cánones clásicos.
El patio de la derecha o del lado nordeste, configura un rectángulo bien delineado, mientras que el de la izquierda, situado al noroeste, tiene los ángulos achaflanados para poder adaptarse así al espacio disponible. El primero de ellos presenta arquerías de medio punto sostenidas por columnas de sección cilíndrica. Las columnas son lisas, tienen capiteles de orden toscano y se levantan sobre altos pedestales cuadrangulares. Amplias placas recortadas refuerzan las claves de los arcos y los unen al entablamento, que se compone de arquitrabe y friso. El primero está moldurado y decorado con placas superpuestas y sostiene al friso que aparece animado por la alternancia de triglifos y metopas y de él sobresale una cornisa que subraya la divisoria de los dos pisos. En la planta alta se alternan ventanas y balcones adintelados, entre los que se interponen pilastras adornadas con placas.
![]() |
| Patio del cuadrante noreste o de San Mateo. |
El patio del lado noroeste está construido con un estilo muy similar pero, debido al desnivel existente del terreno, los plintos tienen mayor altura y se añadieron, además, unos cimacios sobrepuestos a los capiteles, no obstante, el entablamento carece de friso. En el piso superior hay una sucesión de ventanas adinteladas cuyos vanos se ven remarcados con molduras reforzadas en los ángulos y, bajo estas, se ubicaron unas grandes placas que se ensanchan hacia la base y se apoyan sobre la cornisa que media entre los dos pisos. Entre las ventanas se intercalan pilastras.
Por último, cabe destacar que para acceder a los pisos altos de la nueva fábrica del edificio se construyó una única y gran escalinata ubicada entre los dos patios traseros. El tramo más alto de esta escalinata está ornado con bustos de gusto clásico.Historia
Los Reyes Católicos, tras realizar una peregrinación a Santiago de Compostela en 1486, decidieron fundar un centro hospitalario amplio y bien dotado para dar acogida y asistencia a los peregrinos. En principio se pensó en encomendar la nueva fundación al monasterio compostelano de San Martiño Pinario; en 1487 se les daba licencia para erigir el hospital, pero este proyecto se desestimó. Finalmente, en 1492, los reyes toman la resolución de acometer directamente la obra financiándola con la tercera parte de los llamados “votos de Granada”, que consistían en el pago anual de una tasa de cereal por cada labrador de la Corona de Castilla; los votos convirtieron al hospital en una de las grandes instituciones rentistas de Galicia al margen de la autoridad del arzobispo de Santiago y del propio concejo, haciendo de ella un islote de realengo en medio del señorío arzobispal.
En 1499 los reyes despacharon una provisión dirigida al deán de Santiago, Diego de Muros, en la que se le mandaba hacer a costa de la corona un hospital cerca de la catedral “con todas sus oficinas, corrales, huertas, vergeles, entradas e salidas”. En el mismo año, los monarcas indicaban en un memorial cómo y quién tenía que encargarse de la obra y determinaron que, mientras el nuevo edificio no pudiese acoger a los peregrinos, “se tome una o dos casas cerca de donde se ha de hazer el hedificio principal et que se probea con diligencia como se hagan ochenta o cien camas en que puedan caber dozientas personas, dos en cada cama, et se encomienden a tales personas que tengan cargo de las dichas casas et camas e sirvan los peregrinos”.
Los reyes concibieron el nuevo establecimiento como una comunidad de oraciones y servicios al modo medieval, aunando bienes espirituales y atenciones materiales conforme a la mentalidad religiosa de la época y así, en el mismo año de 1499, el papa Alejandro VI expidió una bula para la creación de una cofradía que serviría como elemento canalizador del culto y como base para la recaudación de limosnas destinadas a la creación y el mantenimiento del hospital. El patronazgo del hospital correspondía a los monarcas que tenían poder de nombrar administradores y capellanes, además de fijar las normas con arreglo a los cánones.
En 1501 se comenzaron las obras. En 1509 la reina Juana I de España ordenó se llevasen al nuevo edificio a los enfermos y a todos los peregrinos que fuesen a visitar el sepulcro del Apóstol y a “los otros menesterosos destos mis Reynos e señorios e de cualesquier otras naciones e provincias de la cristiandad e que les den las camas e toda la otra hospitalidad que fuere necesario excepto el mantenimiento porque este solamente se ha de dar á los enfermos”. En 1511, según reza en la inscripción de la portada del hospital, se dieron por concluidas las peregrinerías y los dos patios delanteros del edificio, con las que comunicaban.
En 1512 el papa Julio II, a instancias de los reyes españoles, había concedido a Santiago las mismas exenciones, privilegios y gracias espirituales de que gozaba el hospital Sancti Spiritus in Saxa de Roma y como consecuencia de ello, la hospedería compostelana pasó a atender enfermos de cualquier clase, condición y procedencia. También acogía a los niños abandonados y cumplía con otras funciones de carácter cívico y religioso. Tales fines se mantuvieron hasta el siglo XIX.
En el año 1517 el hospital tenía en funcionamiento seis salas de enfermerías separadas para hombres y mujeres, además de los aposentos de los niños expósitos y sus nodrizas. Una vez concluido, disponía de otras salas para nobles y sacerdotes. Estaba también dotado de botica, laboratorio, comedores y habitaciones para los funcionarios, despensa, bodega, ropería y panadería. Además, para los peregrinos sanos, había un comedor o refectorio, un dormitorio para mujeres peregrinas y dos más para los hombres. En algunos momentos la afluencia de peregrinos enfermos era tan grande que las camas tenían que ser compartidas por tres personas.
Aunque es de suponer que desde un principio la actividad del hospital estuviese regulada, no fue hasta el año 1524 cuando el emperador Carlos V dictó las primeras Constituciones conocidas. A través de ellas se establecieron los sistemas de defensa de los derechos y exenciones jurisdiccionales del hospital y también la administración de sus rentas; el hospital solo dependía del rey y del papa y, por lo tanto, no estaba sujeto a la justicia ordinaria, ni a la jurisdicción del arzobispado. Aun así, con ambas instituciones hubo abundantes pleitos por intento de injerencias. Además, las Constituciones establecieron los cargos de administración, de servicios complementarios, de iglesia y de atención a enfermos, peregrinos y expósitos, estando regulados los derechos y deberes que correspondían al personal, sus salarios y la coordinación de las labores.
Por lo que respecta al funcionamiento del hospital, se prohibió el uso de armas en el interior del establecimiento, lo mismo que los juegos de naipes y dados. Por otra parte, se estableció que los capellanes del hospital debían de ser buenos latinos, la mitad de ellos extranjeros, franceses, alemanes, flamencos o ingleses, para poder oír en confesión a los peregrinos que no conociesen otros idiomas que los suyos propios. También el “hospitalero de los sanos” debía ser latino o saber lenguas extranjeras; a su cargo estaba recibir a los peregrinos y señalar en los respectivos bordones las noches que pasaban en el hospital para que no excediesen del número reglamentario (cinco días en invierno y tres en verano). El mismo hospitalero estaba encargado de la limpieza de los dormitorios, de la ropa y de las camas. Había también un “refitolero” que igualmente recibía a los peregrinos sanos y les daba de comer los mismos días que podían dormir en el hospital. El “refitolero” debía asegurarse de que hubiese personal para servir y además, debía proveer todas las cosas necesarias tales como mesas, manteles, vasos, platos, agua y sal. En el invierno se encargaba de que hubiese fuego en la chimenea del refectorio. A mayores, los peregrinos podían dejarle sus cosas para que las guardase en una cámara y si las perdía debía abonarlas de su propio bolsillo.
Los enfermos no tenían restricciones en cuanto al número de días en que podían quedarse. Estaba contemplado que “el dicho administrador del dicho nuestro Hospital tenga proveydo de una persona, ó dos, los quales por lo menos dos veces al día, anden por la ciudad e por la dicha Iglesia á buscar los Peregrinos enfermos y los que hallaren, que no sean de aquellas enfermedades contagiosas, e incurables, los hagan luego llevar al dicho nuestro Hospital para que sean curados en él”. Cuando los médicos suponían que el enfermo no podía mejorar era enviado a otro hospital o dado de alta. Para asistir a sus pacientes el cirujano debía tener en el armario todo el instrumental necesario siempre listo y en buenas condiciones. El boticario tenía prohibido realizar preparados y compuestos sin la supervisión de los médicos.
El hospital tenía un cementerio con su propia capilla, donde eran enterrados los peregrinos y enfermos que fallecían en dicho establecimiento, a no ser que estos previamente hubieran dispuesto su sepelio en cualquiera de las otras iglesias de la ciudad, en cuyo caso lo llevaban allí con la “Cruz de la dicha casa”.
Este esquema de organización establecido por Carlos V permaneció en tiempos posteriores y así las Constituciones de Felipe II en 1590, o los Mandatos de Carlos II dados en el año 1697, solo afectaron a aspectos complementarios como la ampliación de plantillas o algún otro detalle que venía a regular determinadas atenciones a los enfermos.
En sus primeros tiempos el hospital Real dio prioridad a los peregrinos. Se entendía que peregrinos eran aquellos foráneos que iban a visitar al apóstol Santiago y no otros que fuesen a otras cosas, o que anduviesen por la ciudad sin más. Hay que matizar que desde comienzos del siglo XVI creció la desconfianza de las autoridades hacia los romeros, asimilados en ocasiones a vagos y maleantes que “so capa de devoción, andaban libre y desembargadamente cometiendo fechorías”. Con respecto a esto último, el concejo de Compostela promulgó a lo largo de los siglos XVI y XVII diversas ordenanzas orientadas a evitar los abusos de posibles tunantes, limitando -entre otras cosas- el tiempo de permanencia de los extranjeros en la ciudad.
En el siglo XVII las cifras demuestran que el impacto del jubileo era menor que en otros lugares de peregrinación como Roma, pesando factores de tipo político y militar, en especial los referidos a las relaciones entre España y Francia, toda vez que por entonces el 70% de los extranjeros procedían de ese país. A pesar de todo hubo años y períodos en los que se registró un considerable incremento del número de peregrinos acogidos en el Hospital Real, coincidiendo por lo general con los años santos. Algunos viajeros aluden en sus relatos al gran concurso de devotos que acudían a Santiago y así, por ejemplo, Cosme de Medicis afirmaba en 1669 que la afluencia de gente para abrazar al Apóstol no cesaba en todo el día.
Una importante novedad, que vendría a incidir en la orientación del establecimiento, se produjo a mediados de esta última centuria cuando se comenzó a utilizar el hospital como escuela de medicina.
A partir del año 1700, coincidiendo con una época de gran prosperidad económica y con un donativo de 2.000 ducados que se dejo para tal fin, se concedió en el Hospital Real pan, vino e incluso a veces ración alimenticia completa para los peregrinos. No obstante, éstos acabaron por pasar a un segundo plano, siendo los pobres enfermos procedentes de la propia ciudad de Santiago y también del resto de Galicia los que mayormente acapararon las atenciones del hospital en el transcurso del siglo XVIII. Para algunos autores este hecho viene a confirmar el enraizamiento de dicho establecimiento en su entorno social y demográfico más inmediato, de tal manera que allí se acabó atendiendo prácticamente a todos los que afectados de cualquier enfermedad que llamaban a sus puertas, salvo los leprosos, paralíticos y sifilíticos, que eran atendidos en otros centros especializados de la misma ciudad.
A mediados del siglo XVIII el napolitano Nicola Albani, que se alojó tres noches en el hospital, se quejaba de que se le había asignado un “lecho sin gran limpieza, y sin cena”, encontrándose a “cerca de ciento sesenta peregrinos de diferentes naciones, que no hay un solo día que no lleguen treinta o cuarenta peregrinos por la devoción de dicho santo”.
El cambio definitivo en la historia del hospital Real vendrá tras las Constituciones dadas por Carlos IV en 1804 que establecieron el cese de la jurisdicción espiritual y temporal que antes tenía el capellán mayor, quedando lo espiritual en el ordinario eclesiástico y lo temporal en la justicia ordinaria, perteneciendo al hospital solo el gobierno y administración de las rentas. En esa misma centuria terminaron por desaparecer la protección real y seguidamente las propias rentas.
Después de varias vicisitudes, la Diputación Provincial da Coruña se hizo cargo del establecimiento en calidad de hospital provincial. En 1953 la propia Diputación cedió el inmueble sin justiprecio, ni compensación, para permitir que se transformase en hospedería de lujo, que pasaría a formar parte de la red de paradores del Estado. El nuevo hostal mantiene la tradición de acogida a los peregrinos y todavía hoy reserva camas y manutención para ellos por un tiempo limitado.
Fuentes y bibliografía
ARCHIVO GENERAL DE SIMANCAS, Dirección General de Rentas, Primera Remesa, Catastro de Ensenada, Respuestas Generales, Libro 240, fol. 19v.
ARCHIVO GENERAL DE SIMANCAS, Mapas, Planos y Dibujos, 34, 21.
BARREIRO MALLÓN, Baudilio, REY CASTELAO, Ofelia, Pobres, peregrinos y enfermos: la red asistencial gallega en el Antiguo Régimen, Santiago de Compostela, Consorcio de Santiago, Vigo, Nigra Arte, 1998.
BONET CORREA, Antonio, La arquitectura en Galicia durante el siglo XVII, Madrid, Consejo Superior de Investigaciones Científicas, 1984.
CASTILLO LÓPEZ, Ángel del, Inventario de la riqueza monumental y artística de Galicia, La Coruña, Fundación Pedro Barrié de la Maza, 1987.
FREIRE NAVAL, Ana Belén, “A transformación do Hospital Real de Santiago de Compostela en Parador de Turismo”, en José Manuel García Iglesias (dir.), O Hospital Real de Santiago de Compostela e a hospitalidade no Camiño de Peregrinación: [catálogo da exposición no] Museo do Pobo Galego, Santiago de Compostela, 14 xullo – 29 agosto, 2004, [Santiago de Compostela], Xunta de Galicia, S.A. de Xestión do Plan Xacobeo, D.L. 2004, pp. 529-546.
GARCÍA GUERRA, Delfín, El Hospital Real de Santiago (1499-1804), La Coruña, Fundación Pedro Barrié de la Maza, 1983.
GARCÍA IGLESIAS, José Manuel, O Barroco I, Francisco Rodríguez Iglesias (dir.), A Coruña, Hércules, D.L. 1993 (Galicia. Arte, 13).
HUIDOBRO Y SERNA, Luciano, Las peregrinaciones jacobeas, t. 3, Madrid, Instituto de España, 1951.
LUCAS ÁLVAREZ, Manuel, El Hospital Real de Santiago (1499-1531), Santiago de Compostela, Universidad de Santiago [de Compostela], 1964.
LUCAS ÁLVAREZ, Manuel, voz “Hospital de los Reyes Católicos”, en Ramón Otero Pedrayo (dir.), Gran Enciclopedia Gallega, t. 17 (Guerra – Imprenta), Santiago de Compostela, Gijón, Silverio Cañada, 1974, pp. 170-180.
LÓPEZ Y LÓPEZ, Román, Santiago de Compostela: guía del peregrino y del turista, Santiago [de Compostela], Tip. de “El Eco Franciscano”, 1928.
MADOZ, Pascual, voz “Santiago ó Compostela”, en Diccionario geográfico-estadístico-histórico de España y sus posesiones de Ultramar, t. 13 [Phornacis – Sazuns], Madrid, Imprenta del Diccionario geográfico-estadístico-histórico de D. Pascual Madoz, 1849, pp. 815-825.
REY CASTELAO, Ofelia, “Historia do Real Hospital de Santiago”, en José Manuel García Iglesias (dir.), O Hospital Real de Santiago de Compostela e a hospitalidade no Camiño de Peregrinación: [catálogo da exposición no] Museo do Pobo Galego, Santiago de Compostela, 14 xullo – 29 agosto, 2004, [Santiago de Compostela], Xunta de Galicia, S.A. de Xestión do Plan Xacobeo, D.L. 2004, pp. 375-395.
ROSENDE VALDÉS, Andrés Antonio, El Grande y Real Hospital de Santiago de Compostela, [Santiago de Compostela], Consorcio de Santiago, [Madrid], Electa, D.L. 1999.
ROSENDE VALDÉS, Andrés Antonio, Una historia urbana: Compostela, 1595-1780, [Vigo], Nigratrea, [Santiago de Compostela], Concello de Santiago de Compostela, 2004 (Libros da Brétema, 4).
SAAVEDRA FERNÁNDEZ, Pegerto, “El dinamismo socio-económico del principal núcleo urbano de Galicia”, en Ermelindo Portela Silva (coord.), Historia de la ciudad de Santiago de Compostela, Santiago de Compostela, Concello de Santiago, Consorcio de Santiago, Universidade de Santiago de Compostela, 2003, pp. 225-310.
SÁNCHEZ GARCÍA, Jesús Ángel, Faustino Domínguez Domínguez y la arquitectura gallega del siglo XIX, A Coruña, Diputación Provincial, 1997.
SORALUCE BLOND, José Ramón, FERNÁNDEZ FERNÁNDEZ, Xosé, Arquitecturas da provincia da Coruña, vol. 11 (Santiago de Compostela), A Coruña, Deputación Provincial da Coruña, D.L. 1997.
VÁZQUEZ DE PARGA, Luis, LACARRA DE MIGUEL, José María, URÍA RÍU, Juan, Las peregrinaciones a Santiago de Compostela, t. 2, Madrid, Consejo Superior de Investigaciones Científicas, Escuela de Estudios Medievales, 1949.
VÁZQUEZ GALLEGO, Jesús, Los hospitales del Camino Francés en Galicia, Sada (A Coruña), Ediciós do Castro, 2001.
VIGO TRASANCOS, Alfredo, Galicia y el siglo XVIII: planos y dibujos de arquitectura y urbanismo (1701-1800), 2 ts., A Coruña, Fundación Pedro Barrié de la Maza, 2011.
VILA JATO, Dolores, “Institucións hospitalarias. Ata 1900. Hospital Real”, en José Manuel García Iglesias (dir.), Santiago de Compostela, Laracha (A Coruña), Xuntanza, 1993, pp. 476-489 (Patrimonio Histórico Galego, I. Cidades, 2).
VILA JATO, Dolores, O Renacemento, Sada [A Coruña], Ediciós do Castro, D.L. 1993 (Arte en Compostela, 2).
VILA JATO, Dolores, GARCÍA IGLESIAS, José Manuel, Galicia na época do Renacemento, Francisco Rodríguez Iglesias (dir.), A Coruña, Hércules, D.L. 1993 (Galicia. Arte, 12).
VILLAAMIL Y CASTRO, José, Reseña histórica de los establecimientos de beneficencia que hubo en Galicia durante la Edad Media, y de la erección del Gran Hospital Real de Santiago fundado por los Reyes Católicos y Constituciones del Gran Hospital Real de Santiago de Galicia, hechas por el Señor Emperador Carlos Quinto de Gloriosa Memoria. Año de 1524, Santiago de Compostela, Consorcio da Cidade de Santiago de Compostela, Universidad de Santiago de Compostela, Cátedra de Medicina Preventiva y Salud Pública, D.L. 1993.
YZQUIERDO PERRÍN, Ramón, “Aproximación á arquitectura do século XV en Galicia”, en José Manuel García Iglesias (dir.), O Hospital Real de Santiago de Compostela e a hospitalidade no Camiño de Peregrinación: [catálogo da exposición no] Museo do Pobo Galego, Santiago de Compostela, 14 xullo – 29 agosto, 2004, [Santiago de Compostela], Xunta de Galicia, S.A. de Xestión do Plan Xacobeo, D.L. 2004, pp. 345-371.