© Archivo fotográfico del IEGPS
© Archivo fotográfico del IEGPS
© Archivo fotográfico del IEGPS
© Archivo fotográfico del IEGPS
© Archivo fotográfico del IEGPS
© Archivo fotográfico del IEGPS
© Archivo fotográfico del IEGPS
© Archivo fotográfico del IEGPS
© Archivo fotográfico del IEGPS
© Archivo fotográfico del IEGPS
© Archivo fotográfico del IEGPS
© Archivo fotográfico del IEGPS
© Archivo fotográfico del IEGPS
© Archivo fotográfico del IEGPS
© Archivo fotográfico del IEGPS
La capilla compostelana de San Roque formó parte de un antiguo conjunto hospitalario para enfermos de males contagiosos, que se levantó extramuros en las proximidades de la desaparecida Porta da Pena, al norte de la ciudad de Santiago y sobre la salida del llamado Camino Inglés que conducía a la ciudad da Coruña y a otros puertos de costa septentrional de la provincia.
Edificada en el siglo XVI, la capilla ha sido reconstruida en numerosas ocasiones. En la actualidad, consta de una nave única de planta rectangular a la que se le adosa una cabecera de dos tramos que resulta poligonal al exterior en el lado este y un cuerpo para sacristía de altura idéntica a la nave en el muro norte. La capilla está inserida en un recinto murado en todo su perímetro norte y oeste (en este lado cuenta con un acceso) y es colindante en el lado sur al antiguo hospital de San Roque.
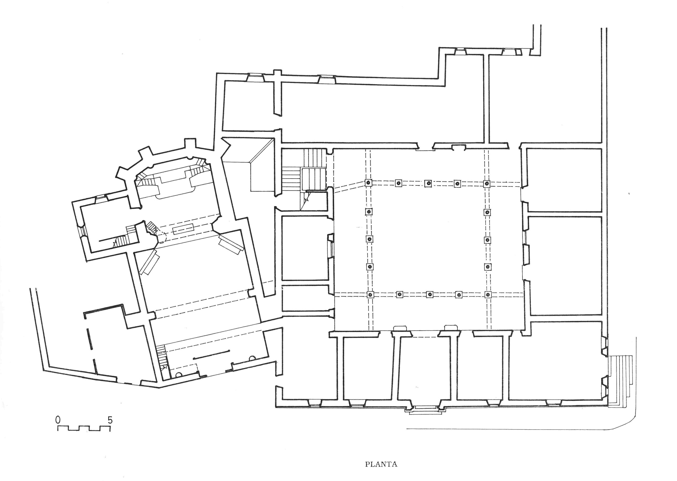
![]() |
| Planta del conjunto de la capilla y del antiguo hospital de San Roque. (José Antonio Franco Taboada, Santiago Tarrío Carrodeguas (dirs.), A arquitectura do Camiño de Santiago: descrición gráfica do Camiño Francés en Galicia, Santiago [de Compostela], Xunta de Galicia, A Coruña, Universidade da Coruña, D.L. 2000). |
El edificio mantiene partes en su fábrica de granito original, otras han sido recebadas y pintadas de blanco. Entre las primeras se encuentran la fachada principal, la parte poligonal de la cabecera, un contrafuerte, los dinteles de puertas y ventanas, así como los esquinales y las cornisas. En la parte visible de la fachada norte destaca el volumen de la sacristía que se iguala en altura a la nave principal y presenta dos registros, contando con vanos rectangulares para la iluminación del interior en sus muros norte, este y oeste. Asimismo, el muro norte de la capilla presenta un contrafuerte de granito a la mitad de la nave y una ventana muy estrecha anterior al volumen de la sacristía.
![]() |
| Vista de la cabecera y de la sacristía en el muro norte de la capilla. |
La fachada principal está construida con sillería de granito y presenta un eje vertical central que ordena los escasos elementos con los que cuenta. En primer lugar, un vano adintelado inscrito en un arco de descarga de medio punto con un tímpano en el que se horada una ventana circular u óculo. En el dintel que separa la puerta del tímpano se puede leer una inscripción fechada en 1647 en la que se puede leer que tal portada se pudo construir gracias a la limosna de los cofrades y su mayordomo Antonio Feijoo. Una segunda inscripción, esta vez en la clave del arco, indica que la fachada fue reedificada en el año 1781.
Sobre este acceso se encuentra una hornacina abovedada sin imagen, aunque se conoce que contaba con la imagen pétrea del santo patrón. Sobre este espacio, se alza una ventana adintelada y, sobre la línea de cubierta, se eleva una pequeña espadaña barroca construida en 1867 en sustitución de una anterior, obra del maestro José Crespo en 1753. La espadaña tiene un arco de medio punto, flanqueado por dos pilastras en cuyo intradós del arco se inscriben otros dos pequeños arcos con sus correspondientes campanas. El cuerpo está coronado por un frontón adornado con tres pináculos. El edificio se cubre con teja siguiendo la disposición de dos aguas en la nave, un agua en la sacristía y poligonal en la cabecera.
![]() |
| Fachada principal de la capilla. |
En el interior, la capilla cuenta con un coro algo al que se accede mediante una escalera arrimada al muro norte. La nave se divide en dos tramos por un arco fajón que sostiene la bóveda de cañón que cubre el espacio. El arco descarga sobre pilastras adosadas al muro. El encuentro entre la nave y la cabecera se resuelve mediante un gran arco triunfal de medio punto de granito que se apoya sobre unas esbeltas pilastras. La cabecera presenta dos tramos, el primero recto cubierto por una bóveda de cañón reforzada por dos arcos fajones y, el segundo, poligonal, que se cubre con bóveda de cascarón. La sacristía y este espacio se comunican mediante una puerta adintelada.
![]() |
| Sección longitudinal de la capilla. (José Antonio Franco Taboada, Santiago Tarrío Carrodeguas (dirs.), A arquitectura do Camiño de Santiago: descrición gráfica do Camiño Francés en Galicia, Santiago [de Compostela], Xunta de Galicia, A Coruña, Universidade da Coruña, D.L. 2000). |
Flanqueando al gran arco triunfal se ubican sendos retablos que ayudan a componer el repertorio iconográfico de la capilla. En el lado del Evangelio, el dedicado a Nuestra Señora de Montserrat y, en el lado de la Epístola el correspondiente a San Sebastián.
![]() |
| Interior de la capilla de San Roque. |
El primero fue realizado en el año 1763. Se trata de un conjunto barroco que consta de un cuerpo principal y el ático. El primero está elevado sobre un zócalo y se estructura sobre sendos pilares cuadriformes con columnas acodadas en cada lado que rematan en un imponente entablamento profusamente decorado. En la parte inferior, en un cuerpo abovedado se ubica la imagen de Nuestra Señora de Montserrat sedente. El ático, está presidido por Santiago Peregrino, que procede del retablo mayor y que sustituye a una imagen de Santa Catalina de Alejandría, obra del proto-barroco realizada por Gregorio Español hacia el año 1625. En la actualidad, dicha figura se ubica en una peana sobre uno de los muros laterales de la capilla, lo mismo que otra notable escultura que representa el martirio de San Andrés, original de Andrés Ignacio Mariño, que procede del propio hospital.
![]() |
| Retablo de Nuestra Señora de los Milagros (izquierda) y San Andrés, ubicado en uno de los laterales de la nave sobre una peana (derecha) |
En el lado contrario, se ubica el retablo de San Sebastián. Este es un conjunto barroco, aunque de menor espectacularidad decorativa que el anterior. Se construyó en madera policromada y gracias a esta se ennoblecen algunos de sus elementos, como los relieves del sotabanco, el friso del banco y los detalles dorados que enmarcan los laterales, los capiteles y las hornacinas centrales. Las figuras que se presentan en sus hornacinas son oba de Gregorio Español, encontrándose en el espacio superior un relieve que describe el martirio de San Sebastián y, en la hornacina inferior, una imagen procesional de San Roque.
![]() |
| Imágenes ubicadas en el retablo del la Epístola correspondientes a San Sebastián (izquierda) y San Roque (derecha). |
En la capilla mayor se ubica un retablo de grandes dimensiones y factura barroca, muy próximo al rococó, sobre todo en lo que se refiere a la ornamentación y a la decoración figurativa. Este retablo sustituyó a otro que había sido realizado en 1604 por Juan Dávila y Gregorio Español y para esta construcción se mandó el encargo a Fernando de Casas y después a Simón Rodríguez, que presentó su proyecto en 1742, debiéndose su ejecución a Domingo de Romay, Andrés Ignacio Mariño y Bernardo García.
El conjunto presenta gran movimiento, que se logra empleando como soporte pilastras y columnas decoradas con óvalos y cintas colgantes y con la ruptura de toda normativa estructural, haciendo que los cuerpos laterales del retablo avancen hacia el espectador. Profusamente decorado, presenta una inmensa escenografía a partir de una calle central y dos calles laterales tratadas de manera independiente. La primera presenta tres calles y, en la central, sobre el sagrario y bajo la imagen de la Inmaculada de la escuela de Mateo de Prado, se encontraba la figura procesional del santo titular. Se trata de una escultura de tamaño natural realizada por José Gambino entre los años 1765 y 1770, que sustituyó a un conjunto escultórico anterior y hoy se encuentra presidiendo el retablo lateral derecho de la capilla. En su lugar, se ha colocado el relieve de la imagen de san Roque en prisión y vestido de peregrino, realizada por Mateo de Prado hacia el año 1647. Los cuerpos laterales del retablo tienen solo dos pisos y albergan en la parte baja las imágenes de San Cosme y San Damián, obras ambas de Andrés Ignacio Mariño y, en las hornacinas superiores, los arcángeles San Miguel y San Rafael, talladas por Pedro Romay. Bajo el altar mayor se encuentran expuestos diversos objetos litúrgicos de orfebrería, junto con las reliquias de san Pío X, san Roque y santa Constanza.
![]() |
| Retablo mayor. |
![]() |
| Relieve de san Roque en prisión de Mateo de Prado. |
Historia
La capilla tuvo su origen en los continuos golpes de peste que sufrió la ciudad en el siglo XVI, lo que determinó que en el año 1517 el cabildo y los regidores acordasen antes que nada hacer una capilla “porque Dios Nuestro señor tuviese por bien de quitar e llebantar esta pestilencia que en esta cibdad e arçobispado anda ay mas de ocho meses, de haser un aermita junto desta cibdad a honrra e adocación de Señor san Roque”.
El contrato para la construcción del pequeño templo se firmó con el arquitecto Martín de Blas en 1520, aunque muy pronto se abandonaron las obras. Tuvieron que transcurrir 50 años hasta que una nueva epidemia recordó el antiguo voto, firmándose un nuevo contrato entre los canteros Alonso Rodríguez y Pedro Núñez y el mayordomo de la iglesia Francisco Pereira, para hacer 150 varas de piedra para “dicha obra de San Roque que ahora se edifica”.
En 1571 los canteros Gregorio Fernández y Antonio Pérez se comprometieron a hacer obras de cantería en la capilla, que serían supervisadas por Juan de Herrera. La capilla se acabó en 1576 y un año más tarde el arzobispo Blanco fundó el hospital en un terreno contiguo.
En los siglos XVII y XVIII se efectuaron diversas reformas que afectaron principalmente a la fachada de la capilla.
A finales del siglo XIX nos dicen Fernández y Freire, que en la fiesta de san Roque el cabildo metropolitano asistía a una misa cantada en la capilla, a la que se dirigía procesionalmente y en traje de coro desde la catedral.
Fuentes y bibliografía
FERNÁNDEZ SÁNCHEZ, José María, FREIRE BARREIRO, Francisco, Santiago, Jerusalén, Roma: diario de una peregrinación á estos y otros santos lugares de España, Francia, Egipto, Palestina, Siria é Italia, en el año del Jubileo Universal de 1875, t. 1, Santiago [de Compostela], Imp. del Boletín Eclesiástico, 1880.
FERNÁNDEZ SÁNCHEZ, José María, FREIRE BARREIRO, Francisco, Guía de Santiago y sus alrededores, Santiago [de Compostela], Imprenta del Seminario Conciliar, 1885.
FOLGAR DE LA CALLE, María del Carmen, Simón Rodríguez: Catalogación Arqueológica y Artística de Galicia del Museo de Pontevedra, La Coruña, Fundación Pedro Barrié de la Maza, 1989.
FOLGAR DE LA CALLE, María del Carmen, “La capilla compostelana de San Roque, arquitectura y retablos”, en Miguel Romaní Martínez, María Ángeles Novoa Gómez (eds.), Homenaje a José García Oro, Santiago de Compostela, Universidade de Santiago de Compostela, 2002, pp. 437-460.
GARCÍA IGLESIAS, José Manuel, O Barroco II, Francisco Rodríguez Iglesias (dir.), A Coruña, Hércules, D.L. 1993 (Galicia. Arte, 14).
SINGUL LORENZO, Francisco, FERNÁNDEZ CASTIÑEIRAS, Enrique, San Miguel dos Agros (Santiago de Compostela), Santiago de Compostela, Xunta de Galicia, S.A. de Xestión do Plan Xacobeo, 2001.
SORALUCE BLOND, José Ramón, FERNÁNDEZ FERNÁNDEZ, Xosé, Arquitecturas da provincia da Coruña, vol. 11 (Santiago de Compostela), A Coruña, Deputación Provincial da Coruña, D.L. 1997.
VILA JATO, Dolores, “Institucións hospitalarias. Ata 1900. O Hospital de San Roque”, en José Manuel García Iglesias (dir.), Santiago de Compostela, Laracha (A Coruña), Xuntanza, 1993, pp. 490-493 (Patrimonio Histórico Galego, I. Cidades, 2).
VILA JATO, Dolores, O Renacemento, Sada [A Coruña], Ediciós do Castro, D.L. 1993 (Arte en Compostela, 2).
VILA JATO, Dolores, GARCÍA IGLESIAS, José Manuel, Galicia na época do Renacemento, Francisco Rodríguez Iglesias (dir.), A Coruña, Hércules, D.L. 1993 (Galicia. Arte, 12).