La iglesia de San Miguel de Cerceda (O Pino, A Coruña) se encuentra a unos quinientos metros al sur del lugar do Empalme, por donde transcurre el trazado del Camino Francés entre las poblaciones da Brea, al este, y Santa Irene, al oeste.
![]() |
| Fachada principal de la iglesia de San Miguel de Cerceda. |
La iglesia está orientada de forma canónica con la cabecera hacia el oriente. Se emplaza en medio de un recinto acotado que acoge además el atrio y el cementerio parroquial. Está construida con muros de mampostería enlucidos; los vanos y los esquinales dejan los sillarejos a la vista. Las cubiertas son de teja sostenidas por armazones de madera.
![]() |
| Alzado frontal de la iglesia.
(José Antonio Franco Taboada, Santiago Tarrío Carrodeguas (dirs.), A arquitectura do Camiño de Santiago: descrición gráfica do Camiño Francés en Galicia, Santiago [de Compostela], Xunta de Galicia, A Coruña, Universidade da Coruña, D.L. 2000). |
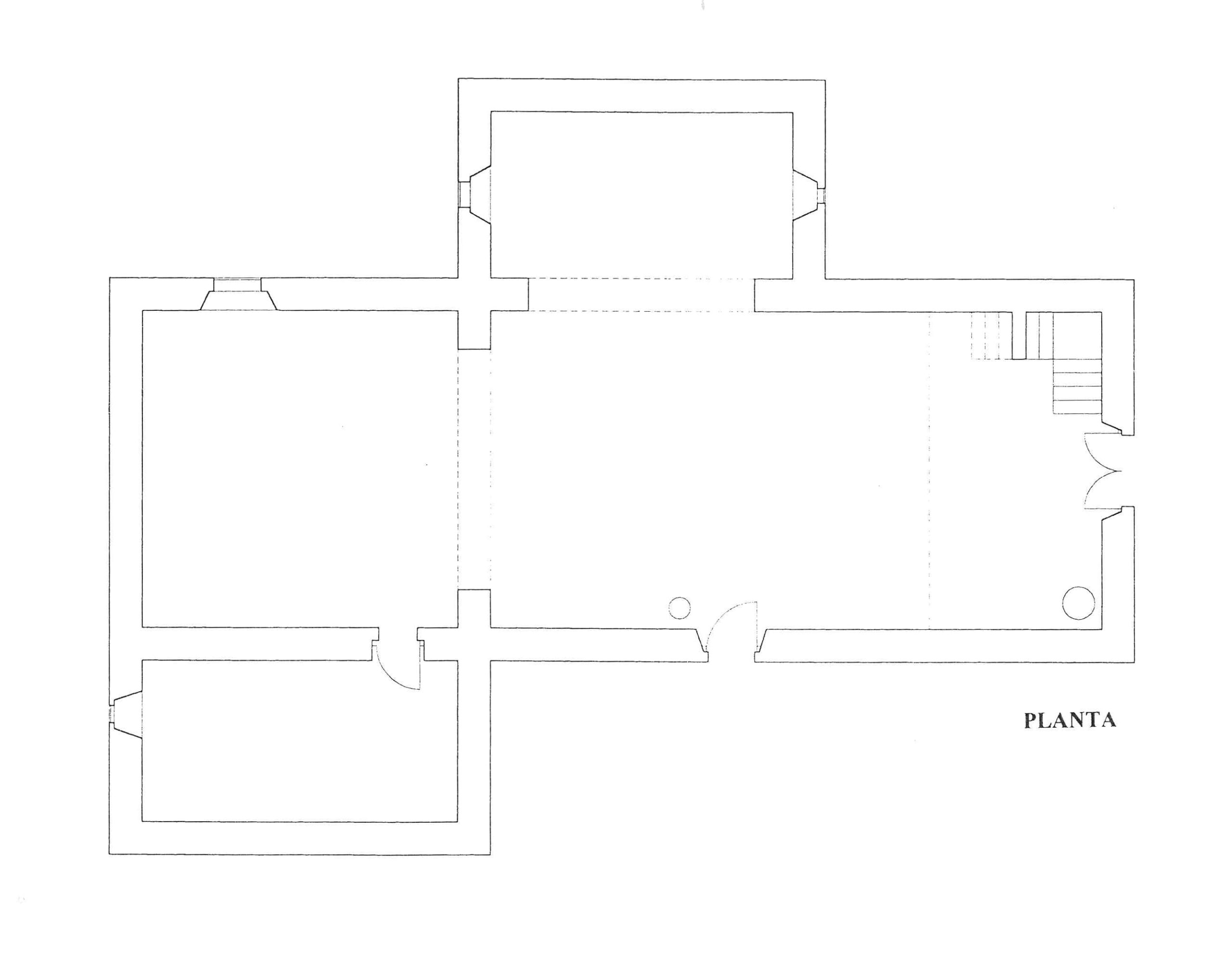
El edificio consta de una sola nave de planta rectangular, con una capilla lateral adosada en el lado sur y una tribuna alta a los pies. La nave se prolonga en la línea recta de la cabecera, que es de planta cuadrangular. Al muro norte de la cabecera se adosa el cuerpo de la sacristía.
![]() |
| Planta de la iglesia.
(José Antonio Franco Taboada, Santiago Tarrío Carrodeguas (dirs.), A arquitectura do Camiño de Santiago: descrición gráfica do Camiño Francés en Galicia, Santiago [de Compostela], Xunta de Galicia, A Coruña, Universidade da Coruña, D.L. 2000). |
Nave y cabecera se comunican a través de un arco triunfal de medio punto muy rebajado que se apoya sobre sencillas impostas molduradas de granito. El arco está construido con piedra vista de arenisca muy porosa y de color rojizo, que se empleó en su arranque y se concluyó, seguramente como resultado de alguna reforma, con losas pizarrosas colocadas a rajuela. Otro arco muy similar, comunica la nave con la capilla lateral del lado sur.
![]() |
| Interior de la iglesia de San Miguel de Cerceda. |
La capilla del lado sur recibe luz a través de dos ventanas rectangulares, abiertas en los muros este y oeste. Una ventana rectangular más amplia, que se abre al mediodía, ilumina su testero. En la sacristía hay una aspillera abierta al este y en el lado septentrional de la iglesia se abre otra aspillera que da luz al interior de la nave.
![]() |
| Alzado de la fachada norte de la iglesia.
(José Antonio Franco Taboada, Santiago Tarrío Carrodeguas (dirs.), A arquitectura do Camiño de Santiago: descrición gráfica do Camiño Francés en Galicia, Santiago [de Compostela], Xunta de Galicia, A Coruña, Universidade da Coruña, D.L. 2000). |
En el mismo muro se encuentra una puerta lateral que tiene arco de medio punto peraltado y está construido con el mismo tipo de piedra arenisca que se empleó en el arco triunfal; esta puerta parece que tenía un tímpano, que por el exterior ha sido recubierto por unas losetas que hoy enmarcan y resaltan el vano.
![]() |
| Puerta lateral. |
En la fachada oeste de la iglesia se abre la puerta principal, que es adintelada. Sobre ella se encuentra una ventana rectangular, que presenta derrame interior. Corona todo el conjunto una espadaña que tiene un cuerpo principal con dos arcos de medio punto que albergan las campanas; a este cuerpo principal se le superpone un frontón con otro arquito de medio punto en el centro. El frontón se adorna con tres pináculos; el central con una cruz de hierro.
![]() |
| Retablo mayor. |
El retablo mayor de la iglesia es de estilo barroco, quizás del siglo XVIII. Está organizado en dos cuerpos que se dividen en tres calles separadas por estípites profusamente decoradas. Los laterales del retablo se adornan con rocallas y grandes volutas. El conjunto carece de ático y está rematado cuatro pináculos colocados sobre las entrecalles; en el centro se alza un tondo de nubes del que salen grandes rayos de luz y que tiene en medio la representación del ojo inscrito en un triángulo, símbolo de la divinidad. En la calle central del primer cuerpo se encuentra la imagen de Santiago Peregrino, a su derecha está la Virgen del Rosario y a la izquierda la imagen de san Juan Bautista. En la calle central del segundo cuerpo está colocada la imagen de san Miguel, a su derecha san Pedro y a su izquierda san Antonio de Padua.
![]() |
| Talla de la Virgen en la iglesia de San Miguel de Cerceda. |
La capilla del lado meridional de la iglesia no tiene retablo, pero sí un altar sobre el que se encuentran las imágenes del Sagrado Corazón (en el centro), san Roque Peregrino (a la izquierda) y el Niño Jesús (a la derecha). Contra el muro norte de la nave se arrima un pequeño retablo de estilo neoclásico con una sola hornacina flanqueada por columnas de orden jónico, que alberga otra imagen de la Virgen del Rosario. Por último, en el ángulo sureste de la nave, entre la capilla sur y el presbiterio, hay una talla de la Virgen con el Niño de gran calidad, que parece obra del siglo XVIII.
Desconocemos la fecha en que se construyó esta iglesia. La fábrica del edificio acusa importantes reformas que pudieran haber sido mayormente efectuadas en los siglos XVIII y XIX. Se conservan en el muro norte de la nave una ventana aspillerada, una puerta con arco peraltado y una serie de canecillos que pudieran ser medievales.
El cardenal del Hoyo, en la visita que realizó al arzobispado de Santiago en 1607, señala que la fábrica de la iglesia de San Miguel de Cerceda tenía dos ferrados de centeno de renta.
En 1847 Pascual Madoz dice que la iglesia era única y su curato de presentación laical.
ARCHIVO GENERAL DE SIMANCAS, Dirección General de Rentas, Primera Remesa, Catastro de Ensenada, Respuestas Generales, Libro 240, fols. 735r-736r, 739rv.
HOYO, Jerónimo del, Memorias del arzobispado de Santiago, Ángel Rodríguez González, Benito Varela Jácome (eds.), Santiago de Compostela, Porto y Cía., [s.f.].
MADOZ, Pascual, voz “Cerceda (San Miguel de)”, en Diccionario geográfico-estadístico-histórico de España y sus posesiones de Ultramar, t. 6 [Ca Sebastiá – Córdoba], Madrid, La Ilustración Establecimiento Tipográfico-Literario Universal, 1847, p. 320.
SORALUCE BLOND, José Ramón, FERNÁNDEZ FERNÁNDEZ, Xosé, Arquitecturas da provincia da Coruña, vol. 18 (Comarca de Arzúa: Arzúa, Boimorto, O Pino e Touro), A Coruña, Deputación Provincial da Coruña, D.L. 1997.