© Archivo fotográfico del IEGPS
© Archivo fotográfico del IEGPS
© Archivo fotográfico del IEGPS
© Archivo fotográfico del IEGPS
© Archivo fotográfico del IEGPS
© Archivo fotográfico del IEGPS
© Archivo fotográfico del IEGPS
© Archivo fotográfico del IEGPS
© Archivo fotográfico del IEGPS
© Archivo fotográfico del IEGPS
El lugar donde se emplaza la iglesia de la parroquia de Santa María da Castañeda está unido a la población da Fraga Alta (ayuntamiento de Arzúa, provincia da Coruña). El edificio actual de iglesia de Santa María da Castañeda es obra reciente de finales del siglo XIX o comienzos del XX.
Está orientada canónicamente de este a oeste, emplazada en medio de un recinto murado al que se accede por una cancela abierta en el lado del naciente. Este recinto acoge, además, el atrio y el cementerio parroquial.
![]() |
| Iglesia de Santa María da Castañeda. |
La iglesia es de una sola nave de planta rectangular y cuenta con un ábside adosado en la cabecera, tras ella se ubica la sacristía. El templo está construido con muros de mampostería enlucida, conservándose tan solo algunos elementos ennoblecidos en sillería de granito, tales como los esquinales, los dinteles de los vanos y la espadaña.
La fachada principal de la iglesia mira hacia el poniente y cuenta con un único lienzo de estructura sencilla organizada el centro, al eje que comienza con el acceso adintelado al templo, al que sigue un vano aspillero abocinado en el registro superior y que remata en la cubierta con la espadaña elevada sobre un plinto. Esta es una espadaña sencilla de un solo piso con un vano horadado por un arco de medio punto de donde pende la campana. Está rematada con un discreto frontón triangular coronado por una cruz y flanqueado por pequeños pináculos de piedra.
![]() |
| Fachada de la iglesia. |
Los muros laterales presentan características formales idénticas al de fachada, aunque cabe mencionar que el correspondiente al lado sur cuenta con un vano secundario de acceso, también adintelado, así como un vano para la iluminación interior de la cabecera del templo de tipo rectangular. En el muro norte es posible distinguir lo que fue un tercer acceso, ahora tapiado, formado por un arco ciego de descarga a rajuela, dintel de losa de pizarra y jambas formadas por sillarejos irregulares. En el muro este se abren una ventana rectangular y un óculo que dan luz a los dos pisos de la sacristía, coronando el vértice con un pináculo de piedra. El edificio se cierra con cubierta de teja dispuesta a dos aguas.
![]() |
| Puerta tapiada en el muro sur (izquierda) y muro este de la iglesia (derecha). |
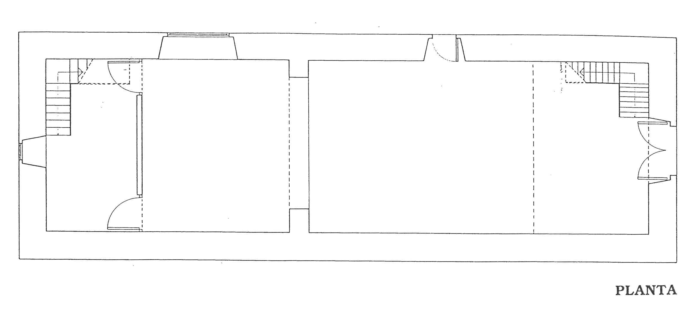
En el interior, la planta presenta una comunicación directa con las distintas partes que forman el edificio. De tal manera, la nave se comunica con la cabecera a través de un arco y esta con la sacristía por medio de dos puertas dispuestas para tal fin que flanquean el retablo del altar.
![]() |
|
Planta de la iglesia. (José Antonio Franco Taboada, Santiago Tarrío Carrodeguas (dirs.), A arquitectura do Camiño de Santiago: descrición gráfica do Camiño Francés en Galicia, Santiago [de Compostela], Xunta de Galicia, A Coruña, Universidade da Coruña, D.L. 2000). |
A los pies de la nave se ubica el coro alto de madera, mismo material que el empleado en la escalera de acceso a este, arrimada al muro del Evangelio. En el lado contrario, la iglesia cuenta con una pila bautismal de piedra protegida tras un perímetro enrejado. La transición entre la nave y la cabecera se resuelve mediante un arco de medio punto de tipo triunfal y, por lo tanto, amplia luz, que descarga sobre una imposta moldurada y pilastras adosadas a los muros. El presbiterio se eleva sobre la línea de cota del solado mediante una doble plataforma.
En él está ubicado el retablo mayor de la iglesia. Se trata de una obra de carpintería policromada y ornada con pan de oro de inspiración barroca. Presenta ciertas similitudes con el retablo mayor de la iglesia cercana de San Paio de Figueiroa. Consta de banco sobre el que se apoya el cuerpo principal estructurado en tres calles verticales y dos pisos, en el centro se ubica el Sagrario. Las calles están divididas por entrecalles a los que dan forma pilastras profusamente decoradas con guirnaldas y rocallas. La calle central tiene una hornacina con arco rebajado que acoge la imagen de la Virgen María, patrona de la iglesia. Las dos laterales presentan hornacinas con arcos de medio punto con imágenes, la del lado derecho san Roque vestido de peregrino; mientras que la del lado izquierdo, acoge la imagen de san Antonio. Sobre el cuerpo principal del retablo se alza el ático con frontón semicircular que alberga la imagen de la Virgen del Carmen. En los extremos del entablamento que sostiene el ático, se colocaron las figuras de dos grandes angelotes. Sobre el frontón se alza un tondo con el triángulo que representa la Trinidad, que aparece rodeado de nubes de las que surgen haces de luz.
![]() |
| Interior de la iglesia: visa de los pies del templo (izquierda) y vista hacia la cabecera (derecha). |
A ambos lados del retablo mayor (sobre las puertas que dan acceso a la sacristía) se encuentran, ubicadas en dos peanas, las imágenes de san José (a la derecha) y de la Inmaculada (a la izquierda). Arrimado al muro norte de la nave se encuentra el retablo del Sagrado Corazón, realizado en la pasada centuria en estilo neogótico.
En las inmediaciones de la iglesia se encuentra un crucero. Este, consta de fuste liso circular seguido de un sencillo capitel moldurado y una cruz latina que se apoyan sobre una basa de planta cuadrada, misma morfología que la cuádruple plataforma sobre la que se eleva el conjunto.
![]() |
| Crucero en las inmediaciones de la iglesia. |
En la relación de los beneficios parroquiales del obispado de Lugo del año 1755 figura en el arciprestazgo de Abeancos la feligresía de Santiago de Boente, con su aneja Santa María da Castañeda, siendo el patronato prerrogativa de su Majestad y del obispo lucense. Casi un siglo después su curato era, según Pascual Madoz, de oposición en concurso.
Atanasio López, tras la visita que realizó en los años cuarenta del siglo XX, apuntó que esta iglesia era de reducidas dimensiones y que en su cementerio destacaba el panteón de los Saavedra. Dice el autor haber visto en el mismo cementerio algunas piedras que “manifiestan haber existido allí una construcción románica”.
CARRÉ ALDAO, Eugenio, Geografía General del Reino de Galicia. Provincia de la Coruña, t. 2, Francisco Carreras Candi (dir.), Barcelona, Casa Editorial Alberto Martín, [s.f.].
GARCÍA CONDE, Antonio, LÓPEZ VALCÁRCEL, Amador, “Episcopologio Lucense (X-1990)”, Liceo Franciscano, 43, 130-132 (1991), pp. 747-749 [Arciprestazgo de Abeancos].
LÓPEZ, Atanasio, “Excursión a la villa de Arzúa y sus alrededores”, en Lino Gómez Canedo (ed.), Nuevos estudios crítico-históricos acerca de Galicia, t. 2, Santiago de Compostela, Consejo Superior de Investigaciones Científicas, Instituto Padre Sarmiento de Estudios Gallegos, 1947, pp. 286-294.
MADOZ, Pascual, voz “Castañeda (Sta. María de)”, en Diccionario geográfico-estadístico-histórico de España y sus posesiones de Ultramar, t. 6 [Ca Sebastiá – Córdoba], Madrid, La Ilustración Establecimiento Tipográfico-Literario Universal, 1847, p. 82.
SORALUCE BLOND, José Ramón, FERNÁNDEZ FERNÁNDEZ, Xosé, Arquitecturas da provincia da Coruña, vol. 18 (Comarca de Arzúa: Arzúa, Boimorto, O Pino e Touro), A Coruña, Deputación Provincial da Coruña, D.L. 1997.